Morges | 830’000.- CHF

2.5 new rooms with garden in Morges

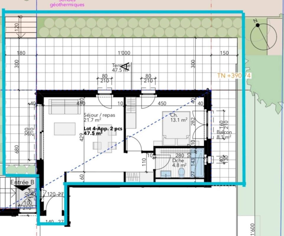
  • 75.3 m2
  • 2.5 p
  • 1
  • Apartment type Ground floor
  • Weighted surface area 75.3 m2
  • Net surface area 47.5 m2
  • Floor Lower ground floor
  • Number of bathrooms 1
  • Year of construction 2026
  • Type of heating Geothermal energy
  • Gross yield 67

2.5 new rooms with garden in Morges

This apartment, currently under construction, is located in the center of Morges, right next to the SBB station and away from any nuisance.

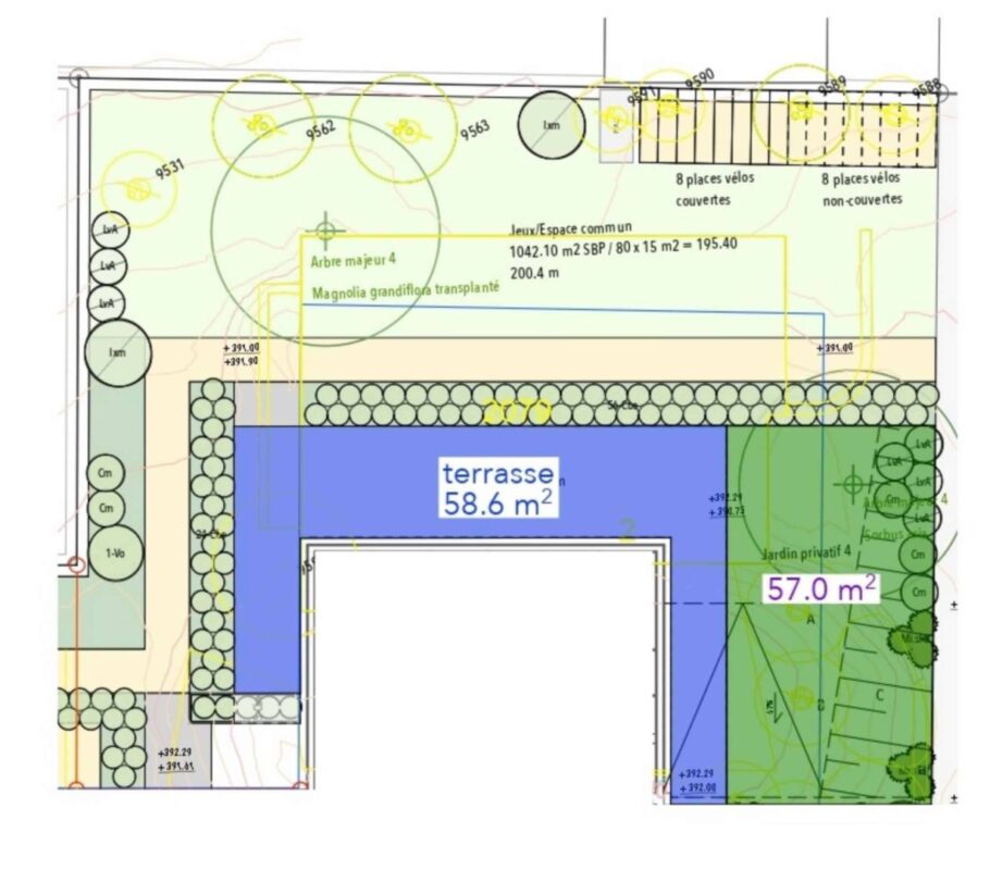
Located on the upper ground floor, it boasts a large 55 m2 terrace and a private garden of over 50 m2.

The living room boasts a large west-facing bay window, providing plenty of natural light. The bedroom has a surface area of over 13 m2 with several openings onto the terrace, and the shower room is naturally ventilated by a window.

The building's construction embodies excellence in sustainable development (geothermal heating, solar panels, triple glazing, etc.).

It is still possible to choose certain fittings and finishes (kitchen, bathrooms and floors). Budgets are extremely generous.

An indoor parking space is also available.

Delivery is scheduled for summer 2026. Contact us now for a detailed presentation of this property, which will suit both an investor looking for a strategic location and a first-time buyer.

Characteristics

Surroundings

  • Distances
    • Station : 300 m
    • Bus stop : 300 m
    • Entrance/Exit motorway : 1 km
    • Kindergarten/Nursery/Daycare : 650 m
    • Primary school : 500 m
    • Secondary school : 200 m
    • Shops : 300 m
    • Restaurants : 50 m
    • Bank : 600 m
    • Public pool : 900 m
    • Cinema : 750 m
    • Concert hall : 900 m

Characteristics

Discover similar properties

La Rippe

Apartment

  • 4.5 p
  • 116.7 M2
990’000.-(CHF)

Acorn

Apartment

  • 4.5 p
  • 135 M2
  • 1
890’000.-(CHF)

Romont FR

Apartment

  • 4.5 p
  • 114.9 M2
  • 1
665’000.-(CHF)